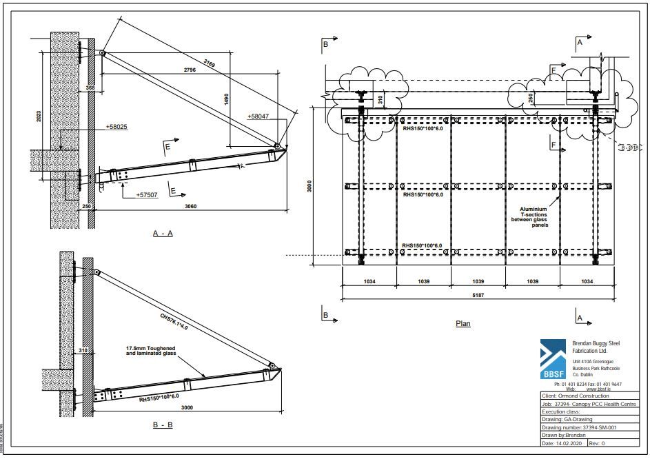
Entrance Canopy
Stainless steel and glass canopy provided to entrance of this public building. Design, engineering calculations and installation works were provided by BBSF. The requirements included stainless steel frame, laminated toughened glass and engineers calculations.
















